Как правильно оборудовать санузел для детей инвалидов в детском саду?
Основная особенность оснащения санузлов для детей-инвалидов в детском саду состоит в том, что нужно одновременно учесть и нормы СанПиН, и нормы доступности для детей с различными ограничениями здоровья. Так, потребности ребенка на инвалидной коляске отличаются от потребностей ребенка с нарушениями опорно-двигательного аппарата (ОДА), способного стоять самостоятельно. Потому в санузле для детей-инвалидов должны быть созданы условия для всех категорий детей-инвалидов.
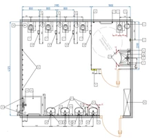
1. Организация пространства
Площадь санузла для детей от 3 до 7 лет должна составлять не менее 16,0 м2 (п. 2.4.11 СП 2.4.3648-20). Помещение должно делиться 2 зоны (п. 3.1.7 СП 2.4.3648-20):
- В умывальной зоне устанавливаются раковины и душевой поддон;
- В зоне унитазов устанавливаются детские унитазы с сиденьем
Для детей, передвигающихся на инвалидной коляске, выделяется доступная кабина, в которой размещают унитаз, раковину и другое нормативное оборудование – поручни, систему вызова помощи, крючки, аксессуары. Планировка доступной кабины должна включать свободное пространство для разворота кресла коляски диаметром не менее 1400 мм.
Для персонала также выделяется отдельная кабина.
2. Установка раковины
Согласно СанПиН 1.2.3685-21 (табл. 6.4) раковина для детей от 4 до 7 лет должна устанавливаться на высоте 0,5 м по верхнему краю, что обусловлено ростом детей данного возраста. Однако детская инвалидная коляска отличается от взрослой только шириной спинки. Сиденье детских колясок располагается на высоте 0,45-0,5 м от пола, поэтому ребенок физически не может заехать ногами под раковину, установленную на высоте 0,5 м.
- Раковину для детей на инвалидной коляске необходимо устанавливать на высоте 0,8 м. от пола.
- Под раковиной для детей на инвалидной коляске должно оставаться пространство для ног глубиной от 0,5 м, поэтому в доступную кабину нужно выбирать раковину большего размера, чем раковины в умывальной зоне.
- Раковина для детей с нарушениями ОДА, способных стоять самостоятельно устанавливается в общей умывальной зоне на высоте 0,5 м от пола.

3. Установка унитаза
Согласно п. 6.3.2 СП 59.13330.2020 санузлы для детей с инвалидностью должны оснащаться детскими унитазами. Санузлы для детей с нормотипичным развитием также должны оснащаться детскими унитазами (п.3.1.7 СП 2.4.3648-20). Термин "детский унитаз" проясняется в ГОСТ 30493-2017 (таблица 3, раздел 3.4). Согласно данному документу сиденье детских унитазов должно быть на уровне 335 мм от пола. Таким образом высота унитазов в детских санузлах любого типа должна быть одинакова. И действительно, на практике увеличивать высоту сиденья унитаза для детей на инвалидных колясках не имеет смысла, поскольку дети не пересаживаются с коляски на унитаз самостоятельно. При незначительном поднятии чаши унитаза разница между высотой сиденья коляски и сиденьем унитаза все равно будет слишком большая для удобной пересадки, а поднятие чаши еще выше не будет соответствовать росту ребенка – он просто не достанет ногами до пола.
Если сиденье унитаза будет расположено на высоте 335 мм от пола, то такой унитаз подойдет не только детям на колясках, но и детям с другими нарушениями ОДА. В этом случае не нужно оснащать поручнями еще один унитаз в общей зоне.
- Высота сиденья унитаза для детей должна быть 335 мм от пола. Дети, использующие инвалидную коляску, пересаживаются на унитаз с помощью взрослых.
4. Поручни для детей с инвалидностью
В санузлах для детей с инвалидностью нельзя устанавливать откидные поручни (п. 5.5.15 ГОСТ 51261-2022). Во всех сценариях оснащения должны использоваться поручни без подвижных частей. Рекомендованы травмобезопасные U-образные поручни настенного крепления и прямые горизонтальные настенные поручни.
Сценарии размещения поручней:
- Поручни около унитаза для детей на колясках. Со стороны пересадки рекомендован горизонтальный прямой поручень, расположенный вдоль задней стены. С другой стороны унитаза устанавливается неоткидной поручень с бумагодержателем, расположенный вдоль унитаза на нормативном расстоянии 320 мм от его оси (ГОСТ 51261-2022, табл. 1, п. 5.5.15). Нормативная высота размещения поручней – 510 мм от пола.
- Поручни около раковины для детей на колясках. Размещаются с обеих сторон раковины.
- Поручни около раковины в умывальной зоне. Одна из раковин в умывальной зоне обязательно должна оснащаться поручнями с обеих сторон. Данная раковина предназначена для детей с нарушениями ОДА, способных стоять самостоятельно.
- Поручни в зоне с душевым поддоном. Здесь хорошим решением будут горизонтальные прямые поручни, размещенные с обеих сторон возможного доступа к душевой лейке.
 (1).jpg)
 (1).jpg)
5. Дополнительное оснащение
Туалетные кабины должны оснащаться мусорными ведрами, держателями для туалетной бумаги, сиденьями на унитазы. Раковины должны обеспечиваться мылом, электро- или бумажными полотенцами, ведрами для сбора мусора (п. 2.4.11 СП 2.4.3648-20).
Готовое решение для оснащения доступного санузла в детском саду
Компания «Доступная страна» - эксперт по оснащению санузлов. Мы разработали готовые решения, полностью отвечающие требованиям нормативов и закрывающие все задачи оснащения санузлов в детских садах. Наши решения одобрены Департаментом образования г. Москвы и рекомендованы для применения в дошкольных образовательных учреждениях.
Готовое решение включает в себя типовой проект и полный комплект оборудования. Проект гарантирует расстановку оборудования согласно нормам и избавляет от необходимости поиска подходящего оборудования – все можно приобрести сразу в одном месте.
Мы разработали несколько наиболее востребованных планировочных решений, что позволяет выбрать самый подходящий вариант. Также мы бесплатно разрабатываем проекты санузлов для нетиповых случаев оснащения.


Что мы рекомендуем выбрать
Мы рекомендуем вам выбирать комплекты с детским подвесным безободковым унитазом Dstrana H295. Это решение является полностью нормативным и самым гигиеничным. Наш унитаз имеет минимальную высоту – всего 295 мм. Это дает возможность установить его согласно ГОСТ 30493-2017 на уровне в 335 мм с сохранением технического зазора над полом. Обтекаемый корпус и отсутствие ободка позволяет легко мыть и дезинфицировать чашу унитаза Dstrana H295 как изнутри, так и снаружи.
- Готовый комплект оборудования для оснащения санузла в ДОУ с подвесным унитазом, арт. 9273
- Готовый комплект оборудования для оснащения санузла, совмещенного с кабиной для воспитателя в ДОУ (с подвесным унитазами), арт. 9274
- Готовый комплект оборудования для оснащения санузла с доступной кабиной для МГН в ДОУ (с подвесными унитазами), арт. 9276
- Готовый комплект оборудования для оснащения санузла, совмещенного с кабиной для воспитателя и доступной кабиной для МГН в ДОУ (с подвесными унитазами), арт. 9275
- Готовый комплект оборудования для оснащения детского санузла для инвалидов по ГОСТ (с подвесным унитазом), арт. 9339
Оснащаете санузлы в ДОУ? Обратитесь к нам. Мы поможем вам правильно подобрать и разместить оборудование и подготовим понятные схемы монтажа.
Наши контакты: тел. 8 800 200 13 80, e-mail: zakaz@dstrana.ru
Автор статьи: Чередниченко Надежда Владимировна действующий эксперт в области создания Доступной среды, сертифицированным Всероссийским Обществом Инвалидов