Оборудование для санузла
- Всегда в наличии: самые ходовые модели поручней, сантехники и аксессуаров для правильного оснащения санузла.
- Не нашли нужное? Изготовим для вас любой поручень за 5 рабочих дней или поставим нужную модель сантехники в срок от 3 до 5 рабочих дней.
- Поручни из нержавеющей стали производим самостоятельно, в Москве. Отправляем по всей России
- Строителям - оптовые цены. Обращайтесь!
Читайте подробнее в нашем блоге:
Смотрите видео о том, как правильно адаптировать санузел в организации для людей с инвалидностью
20 важных моментов, которые стоит учитывать при оснащении санузла для инвалидов:
- Наличие не менее 1 доступной кабины в общем числе уборных
- Габариты: не менее, м: ширина - 1,65, глубина - 1,8, ширина двери - 0,9.
- В кабине должно быть: свободное пространство диаметром 1,4 м для разворота кресла-коляски, пространство не менее 0,75 м для размещения кресла-коляски рядом с унитазом
- Двери должны открываться наружу
- Наличие крючков для одежды, костылей и других принадлежностей.
- В универсальной кабине и других санитарно-бытовых помещениях, предназначенных для пользования всеми категориями граждан, в том числе инвалидов, следует предусматривать возможность установки откидных опорных поручней, штанг, поворотных или откидных сидений.
- Размеры универсальной кабины в плане не менее, м: ширина - 2,2, глубина - 2,25.
- Один из писсуаров следует располагать на высоте от пола не более 0,4 м или применять писсуар вертикальной формы.
- Следует применять унитазы, имеющие опору для спины.
- Наличие тактильной пиктограммы доступности перед входом, на высоте 135см
- Система вызова помощника (тревожная сигнализация)
- Унитазы с автоматическим сливом воды или с ручным кнопочным управлением, которое следует располагать на боковой стене кабины, со стороны которой осуществляется пересадка с кресла-коляски на унитаз
- Возможно использование раковин с переменной высотой
- Смеситель с рычажной рукояткой и термостатом, а при возможности - с автоматическими и сенсорными кранами бесконтактного типа.
- Бесконтактные дозаторы и другие устройства
- Урны закрытого типа (не педальный механизм!)
- Опорные поручни диаметром не менее 30мм
- Нельзя применять краны с раздельным управлением горячей и холодной водой
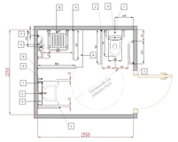
Пример правильного оснащения санузла для инвалидов:
Заказать такой комплект >>



.jpg)

Напишите нам: 
WhatsApp: 84993807050 | email: zakaz+6779768@dstrana.ru | Звоните: 88002001380 | VK

 
                             
                             
                             
                             
                             
                             
                             
                             
                             
                             
                             
                             
                             
                             
                             
                             
                             
                             
                             
                             
                             
                             
                             
                             
                             
                            