Санузел для ДОУ
Компания «Доступная страна» - эксперт по оснащению санузлов. Мы разработали готовые решения, полностью отвечающие требованиям нормативов и закрывающие все задачи оснащения санузлов в детских садах. Наши решения одобрены Департаментом образования г. Москвы и рекомендованы для применения в дошкольных образовательных учреждениях.
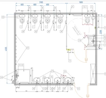
Готовое решение включает в себя типовой проект и полный комплект оборудования. Проект гарантирует расстановку оборудования согласно нормам и избавляет от необходимости поиска подходящего оборудования – все можно приобрести сразу в одном месте.
Готовое решение включает в себя типовой проект и полный комплект оборудования. Проект гарантирует расстановку оборудования согласно нормам и избавляет от необходимости поиска подходящего оборудования – все можно приобрести сразу в одном месте.
Напишите нам:
Телеграм: 89852198327 | email: zakaz+6779768@dstrana.ru | Звоните: 88002001380 | VK

.jpg)

.jpg)
