Top.Mail.Ru

НОВИНКА! Вышла книга генерального директора компании «Доступная страна» Чередниченко Надежды Владимировны: «ПРОСТО. ДОСТУПНО» – понятное и наглядное руководство по созданию комфортной доступной среды. ПОДРОБНЕЕ>>

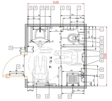
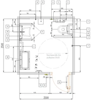
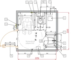
Санузел для инвалидов: готовые комплекты оборудования с DWG проектом

Сортировка:
Всего найдено: 21
Закрытая душевая для инвалидов 1,8 х 1,8 м, комплект оборудования с DWG проектом 8923
Свяжитесь с нами насчет цены
Открытая душевая для инвалидов 0,9 х 1,2 м, комплект оборудования с DWG проектом 8924
Свяжитесь с нами насчет цены

Напишите нам: 
WhatsApp: 84993807050 | email: zakaz+6779768@dstrana.ru | Звоните: 88002001380 | VK