Готовые решения с подвесным унитазом
1. Универсальная кабина с угловым расположением унитаза (с подвесным унитазом арт. 4622)
Габаритные размеры помещения: 1,7 х 2,2 м.
Оборудование: нормативный унитаз с опорой для спины, поручни к унитазу по ГОСТ, система вызова помощи, диспенсер для туалетной бумаги, урна, раковина, поручни для раковины, смеситель с термостатом, дозатор для мыла, сушка для рук, зеркало настенное поворотное, крючок-держатель для тростей и других вещей, тактильно-визуальный знак "Туалет для инвалидов", тактильная мнемосхема санузла, поручень для двери, универсальный травмобезопасный держатель (крючок), диспенсер для одноразовых сидений на унитаз.
2. Универсальная кабина с центральным расположением унитаза (с подвесным унитазом арт. 4622)
Габаритные размеры помещения: 2,2 х 2,25 м.
Оборудование: нормативный унитаз с опорой для спины, поручни к унитазу по ГОСТ, система вызова помощи, диспенсер для туалетной бумаги, урна, раковина, поручни для раковины, смеситель с термостатом, дозатор для мыла, сушка для рук, зеркало настенное поворотное, крючок-держатель для тростей и других вещей, тактильно-визуальный знак "Туалет для инвалидов", тактильная мнемосхема санузла, поручень для двери, универсальный травмобезопасный держатель (крючок), диспенсер для одноразовых сидений на унитаз.
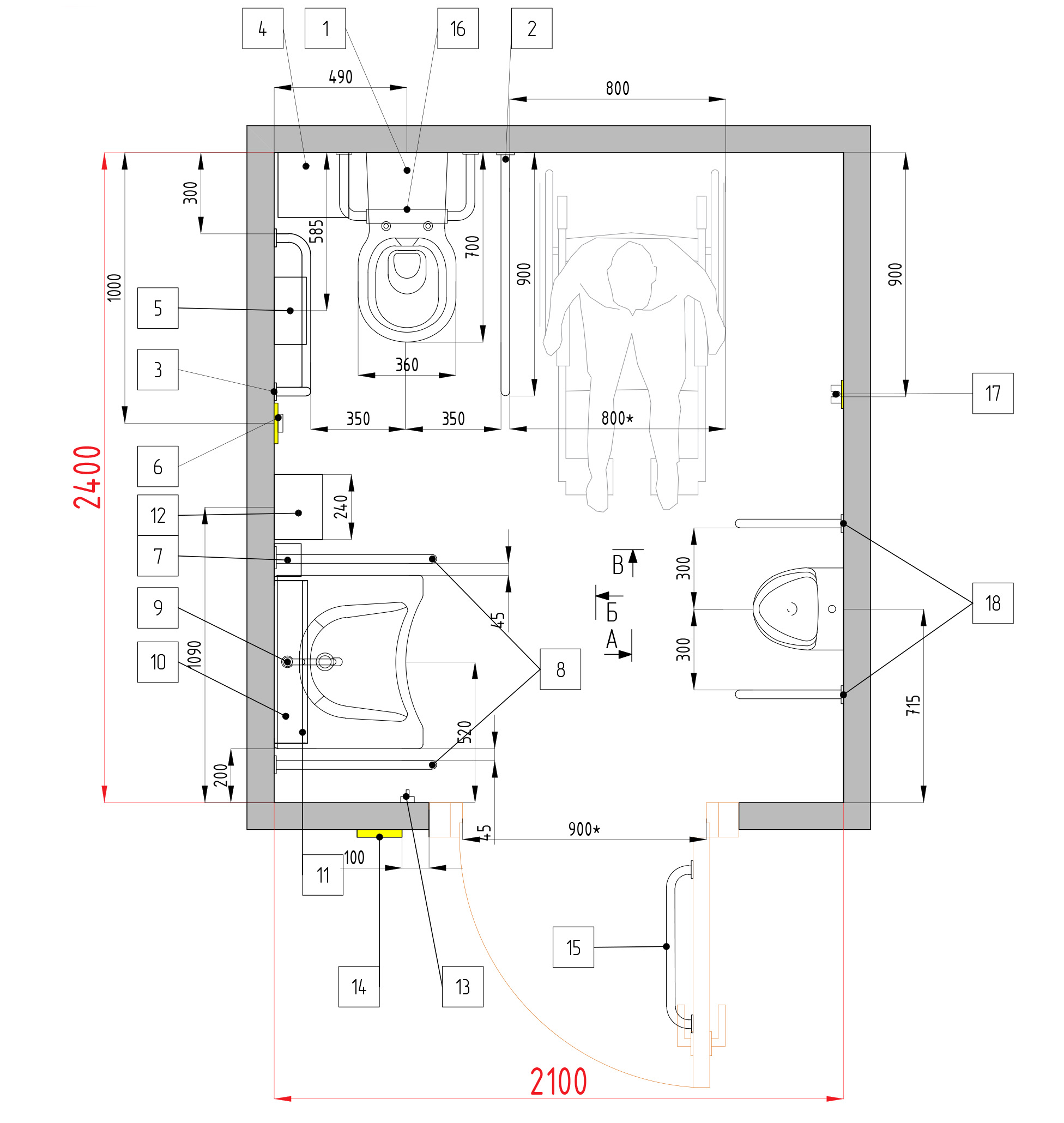
3. Универсальная кабина, центральное расположение унитаза с возможностью пересадки как слева, так и справа (с подвесным унитазом арт. 4622)
_инсталляция_план.png)
Габаритные размеры помещения: 2,4 х 2,25 м.
Оборудование: нормативный унитаз с опорой для спины, поручни к унитазу по ГОСТ, система вызова помощи, диспенсер для туалетной бумаги, урна, раковина, поручни для раковины, смеситель с термостатом, дозатор для мыла, сушка для рук, зеркало настенное поворотное, крючок-держатель для тростей и других вещей, тактильно-визуальный знак "Туалет для инвалидов", тактильная мнемосхема санузла, поручень для двери, универсальный травмобезопасный держатель (крючок), диспенсер для одноразовых сидений на унитаз.
4. Доступная кабина уборной в блоке мужских и женских уборных без раковины (с подвесным унитазом арт. 4622)

Габаритные размеры помещения: 1,65 х 2,2 м.
Оборудование: нормативный унитаз с опорой для спины, поручни к унитазу по ГОСТ, система вызова помощи, диспенсер для туалетной бумаги, урна, раковина, тактильно-визуальный знак "Туалет для инвалидов", поручень для двери, универсальный травмобезопасный держатель (крючок), диспенсер для одноразовых сидений на унитаз.
5. Доступная кабина уборной в блоке мужских и женских уборных с раковиной (с подвесным унитазом арт. 4622)

Габаритные размеры помещения: 1,65 х 2,2 м.
Оборудование: нормативный унитаз с опорой для спины, поручни к унитазу по ГОСТ, система вызова помощи, диспенсер для туалетной бумаги, урна, раковина, поручни для раковины, смеситель с термостатом, дозатор для мыла, сушка для рук, зеркало настенное поворотное, крючок-держатель для тростей и других вещей, тактильно-визуальный знак "Туалет для инвалидов", поручень для двери, универсальный травмобезопасный держатель (крючок), диспенсер для одноразовых сидений на унитаз.
6. Санузел с душем, угловое расположение унитаза (с подвесным унитазом арт. 4622)
Габаритные размеры помещения: 2,5 х 2,4 м.
Оборудование: нормативный унитаз с опорой для спины, поручни к унитазу по ГОСТ, система вызова помощи, диспенсер для туалетной бумаги, урна, раковина, поручни для раковины, смесители с термостатом, дозатор для мыла, сушка для рук, зеркало настенное поворотное, крючок-держатель для тростей и других вещей, тактильно-визуальный знак "Туалет для инвалидов", тактильная мнемосхема санузла, поручень для двери, универсальный травмобезопасный держатель (крючок), сиденье для душа, поручни для душа, планка 5 крючков, полка из нержавеющей стали, высокое сиденье для унитаза без крышки, штанга для душа.
7. Санузел с душем, центральное расположение унитаза (с подвесным унитазом арт. 4622)
Габаритные размеры помещения: 2,7 х 2,4 м.
Оборудование: нормативный унитаз с опорой для спины, поручни к унитазу по ГОСТ, система вызова помощи, диспенсер для туалетной бумаги, урна, раковина, поручни для раковины, смесители с термостатом, дозатор для мыла, сушка для рук, зеркало настенное поворотное, крючок-держатель для тростей и других вещей, тактильно-визуальный знак "Туалет для инвалидов", тактильная мнемосхема санузла, поручень для двери, универсальный травмобезопасный держатель (крючок), сиденье для душа, поручни для душа, планка 5 крючков, полка из нержавеющей стали, высокое сиденье для унитаза без крышки, штанга для душа.
8. Доступная кабина (с подвесным унитазом арт. 4622)
Габаритные размеры помещения: 1,5 х 1,5 м.
Оборудование: нормативный унитаз с опорой для спины, поручни к унитазу по ГОСТ, система вызова помощи, диспенсер для туалетной бумаги, урна, тактильно-визуальный знак "Туалет для инвалидов", поручень для двери, универсальный травмобезопасный держатель (крючок), диспенсер для одноразовых сидений на унитаз.
9. Адаптированная кабина в блоке (с подвесным унитазом арт. 4622)
Габаритные размеры помещения: 1,6 х 0,9 м.
Оборудование: нормативный унитаз с опорой для спины, поручни к унитазу по ГОСТ, система вызова помощи, диспенсер для туалетной бумаги, урна, тактильно-визуальный знак "Туалет для инвалидов", поручень для двери, универсальный травмобезопасный держатель (крючок), диспенсер для одноразовых сидений на унитаз.
10. Санузел с писуаром, угловое расположение унитаза (с подвесным унитазом арт. 4622)
Габаритные размеры помещения: 2,1 х 2,4 м.
Оборудование: нормативный унитаз с опорой для спины, поручни к унитазу и писсуару по ГОСТ, система вызова помощи, диспенсер для туалетной бумаги, урна, раковина, поручни для раковины, смеситель, дозатор для мыла, сушка для рук, зеркало настенное поворотное, крючок-держатель для тростей и других вещей, тактильно-визуальный знак "Туалет для инвалидов", тактильная мнемосхема санузла, поручень для двери, универсальный травмобезопасный держатель (крючок).
11. Санузел для инвалидов совмещенный с комнатой матери и ребенка. Отдельная кабина, подвесной унитаз арт. 4622.
Габаритные размеры помещения: 3 х 3,5 м.
Оборудование: нормативный унитаз с опорой для спины, поручни к унитазу, система вызова помощи, диспенсер для туалетной бумаги, урна, раковина, поручни для раковины, смеситель, дозатор для мыла, сушка для рук, зеркало настенное поворотное, крючок-держатель для тростей и других вещей, тактильно-визуальный знак "Туалет для инвалидов", тактильная мнемосхема санузла, поручень для двери, универсальный травмобезопасный держатель (крючок), пеленальный столик.
12. Санузел для инвалидов совмещенный с комнатой матери и ребенка.(с подвесным унитазом арт. 4622)
Габаритные размеры помещения: 3 х 2,5 м.
Оборудование: нормативный унитаз с опорой для спины, поручни к унитазу, система вызова помощи, диспенсер для туалетной бумаги, урна, раковина, поручни для раковины, смеситель, дозатор для мыла, сушка для рук, зеркало настенное поворотное, крючок-держатель для тростей и других вещей, тактильно-визуальный знак "Туалет для инвалидов", тактильная мнемосхема санузла, поручень для двери, универсальный травмобезопасный держатель (крючок), пеленальный столик.
13. Санузел для инвалидов совмещенный угловое расположение унитаза (с подвесным унитазом арт. 4622)
Габаритные размеры помещения: 2,4 х 2,1 м.
Оборудование: нормативный унитаз с опорой для спины, поручни к унитазу, система вызова помощи, автоматический диспенсер для туалетной бумаги, урна, раковина, поручни для раковины, сенсорный смеситель, сенсорный дозатор для мыла, сушилка для рук, зеркало настенное поворотное, крючок-держатель для тростей и других вещей, тактильно-визуальный знак "Туалет для инвалидов", поручень для писсуара, универсальный травмобезопасный держатель (крючок),диспенсер для одноразовых сидений на унитаз, рулон с одноразовыми сиденьями для унитаза.
Напишите нам:
Телеграм: 89852198327 | email: zakaz+6779768@dstrana.ru | Звоните: 88002001380 | VK


