Готовые решения для санузла для спортивных объектов
1. Готовое решение для универсальной кабины уборной с угловым расположением напольного унитаза арт.4620
Габаритные размеры помещения: 1,7 х 2,2 м.
Оборудование: унитаз напольный для инвалидов, поручни по ГОСТ, урна для санузла 15л., дозатор для мыла, диспенсер для бумажных полотенец, система вызова помощи, раковина для инвалидов, поручень для раковины, смеситель, зеркало, сушилка для рук, поручень, поручень-опора для спины, держатели и крючки, тактильно-визуальный знак.
2. Готовое решение для универсальной кабины уборной с угловым расположением подвесного унитаза арт.4623-А
Габаритные размеры помещения: 1,7 х 2,2 м.
Оборудование: унитаз подвесной для инвалидов, поручни по ГОСТ, урна для санузла 15л., дозатор для мыла, диспенсер для бумажных полотенец, система вызова помощи, раковина для инвалидов, поручень для раковины, сифон для раковины, смеситель, зеркало, сушилка для рук, поручень, поручень-опора для спины, держатели и крючки, тактильно-визуальный знак.
3. Готовое решение для санузла с душевой и угловым расположением напольного унитаза арт.4620
Габаритные размеры помещения: 2,4 х 2,5 м.
Оборудование: унитаз напольный для инвалидов, поручни по ГОСТ, урна для санузла 15л., дозатор для мыла, диспенсер для бумажных полотенец, система вызова помощи, раковина для инвалидов, поручень для раковины, сифон для раковины, смеситель, зеркало, сушилка для рук, поручень, поручень-опора для спины, держатели и крючки, тактильно-визуальный знак, сиденье для душа, поручень в ванную, смеситель для душа, поручень откидной, кнопка вызова для душа со шнурком, полка, штанга для душа, держатель для туалетной бумаги.
4. Готовое решение для санузла с душевой и угловым расположением подвесного унитаза арт.4623-А
Габаритные размеры помещения: 2,4 х 2,5 м.
Оборудование: унитаз подвесной для инвалидов, поручни по ГОСТ, урна для санузла 15л., дозатор для мыла, диспенсер для бумажных полотенец, система вызова помощи, раковина для инвалидов, поручень для раковины, сифон для раковины, смеситель, зеркало, сушилка для рук, поручень, поручень-опора для спины, держатели и крючки, тактильно-визуальный знак, сиденье для душа, поручень в ванную, смеситель для душа, поручень откидной, кнопка вызова для душа со шнурком, полка, штанга для душа, держатель для туалетной бумаги.
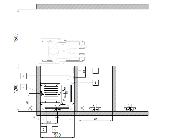
5. Готовое решение для открытой душевой кабины для инвалидов для спортивных объектов
Габаритные размеры помещения: 0,9 х 1,2 м.
Оборудование: кнопка вызова помощи в душевую со шнурком, поручни настенные, сиденье для душа, смеситель для душевой с лейкой и термостатом, полка, штанга для душа, поручень откидной.
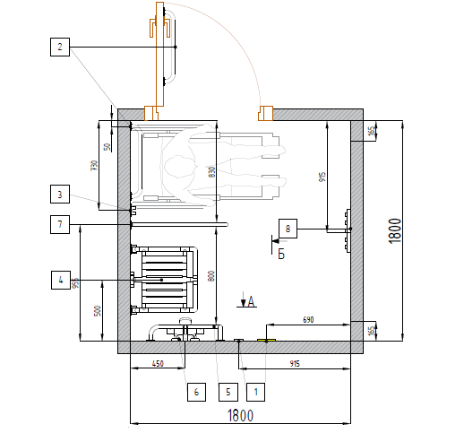
6. Готовое решение для закрытой душевой для инвалидов для спортивных объектов
Габаритные размеры помещения: 1,8 х 1,8 м.
Оборудование: кнопка вызова помощи в душевую со шнурком, поручни настенные, сиденье для душа, смеситель для душевой с лейкой и термостатом, полка, штанга для душа, поручень откидной.
Напишите нам:
Телеграм: 89852198327 | email: zakaz+6779768@dstrana.ru | Звоните: 88002001380 | VK


