Открытая душевая для инвалидов с вертикальным поручнем 0,9 х 1,2 м, комплект оборудования с DWG проектом
Обращаем Ваше внимание, что НДС на некоторые товары различается (от 0 до 22%). В счете указывается цена с НДС с учетом персональных оптовых или дилерских скидок
Для строительных и торгующих компаний у нас действуют оптовые цены. Получить оптовый прайс-лист (с НДС)
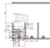
Габаритные размеры помещения: 0,9 х 1,2 м.
*Наше решение - комплексный санузел для людей с инвалидностью получило премию "Решение года в сфере универсального дизайна и обеспечения доступной среды". Подробнее о конкурсе и нашем в нем участии - в новости.
О комплекте и решении:
В соответствии с действующими нормами СП 59.13330.2020 душевая должна быть адаптирована для инвалидов специализированным оборудованием (все необходимое учтено в наборе!).
Данный набор - возможность для вас не искать в разных местах различное оборудование и не думать подходит ли оно друг другу.
- Подобрано в 100% соответствии СП и ГОСТ.
- Комплект универсальный. Подходит для всех типов учреждений.
В комплекте:
- Беспроводной приемник вызовов для комплектов А310, А311, А312, APE510.1, APE510.2, арт. APE6600
- Дополнительная кнопка вызова для душа со шнурком и двумя кольцами с табличкой для комплектов А310ш, APE510.2ш, арт. 8304
- Универсальный травмобезопасный держатель (крючок) из нержавеющей стали, арт. DS-2269
- Сиденье для душа DStrana 53х55 см, с упором в пол, арт. 8342
- Полка для ванной/душевой подвесная, из нержавеющей стали, арт. 8913
- Штанга для душа DS без смесителя, арт. 8251
- Смеситель настенный рычажный с душевой лейкой и термостатом, арт. 8313
- Поручень прямой настенный 600мм Ø 32 мм, арт. 3218-600-К
- Поручень прямой настенный 900мм Ø 32 мм, арт. 3218-900-К
- Поручень для инвалидов в ванную настенный Г-образный 850х600мм, правый, арт. 8061-п/Поручень для инвалидов в ванную настенный Г-образный 850х600мм, левый, арт. 8061-л
Проект в DWG:
- Отправьте нам заявку на почту: zakaz@dstrana.ru
- Напишите нам в WhatsApp или в Telegram, подготовим коммерческое предложение или счет
- Нужна консультация? Звоните +78003027023
- Строительным компаниям: предусмотрены оптовые цены, счета с НДС
- Государственным учреждениям: можем подготовить 1,3 и более коммерческих предложений.
Работаем по договорам, 44/223ФЗ, по пост оплате, доставляем по всей РФ. - Проектирующим компаниям: есть чертежи на данный товар и другую продукцию нашей компании, обращайтесь!


