Готовый комплект оборудования для оснащения санузла с доступной кабиной для МГН в школе (подвесные унитазы)
Обращаем Ваше внимание, что НДС на некоторые товары различается (от 0 до 22%). В счете указывается цена с НДС с учетом персональных оптовых или дилерских скидок
Для строительных и торгующих компаний у нас действуют оптовые цены. Получить оптовый прайс-лист (с НДС)
Наше решение - комплексный санузел с доступными кабинами для МГН для школ включает в себя оборудование и готовое проектное решение по размещению.
Данный комплект отвечает всем требованиям ГОСТ И СП по оснащению школьных учреждений. Данный набор - возможность для вас не искать в разных местах различное оборудование, а приобрести все в одном месте.
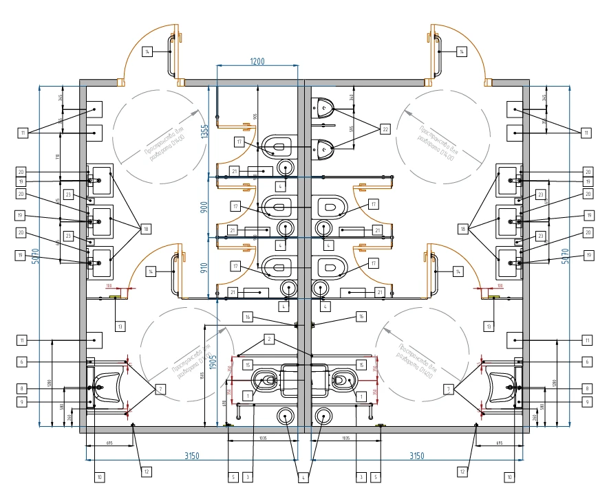
Проектное решение:
![]() |
![]() |
В комплекте:
- Унитаз для инвалидов подвесной соответствующий нормам DSTRANA AID, арт. 4623-А - 2 шт.
- Инсталляция для унитаза для инвалидов с закладными для поручней DSTRANA, арт. 9198 - 2 шт.
- Поручень-опора регулируемая с подушкой для спины в санитарно-гигиенические комнаты 250-370х650 мм, арт. 8346 - 2 шт.
- Поручень для туалета напольный для инвалидов h-образный по ГОСТ 900х750 мм, универсальный, арт. 8067- 2 шт.
- Поручень для туалета настенный откидной без бумагодержателя по ГОСТ 900x150 мм Ø 32, арт. 3207-900 - 2 шт.
- Сенсорный смеситель с термостатом для санузла для инвалидов (для раковин 4624, 6926), арт. 8399 - 2шт.
- Раковина для инвалидов DSTRANA 640х550х165мм, арт. 4624 - 2шт.
- Поручень для раковины двухопорный 600мм Ø 32, арт. 8071-600 – 4 шт.
- Плоский сифон для раковин арт. 4624, арт. 6929 - 2 шт.
- Система вызова помощи в санузел с кнопкой со шнурком А310ш, арт. А310ш - 1 шт.
- Дополнительная кнопка вызова для инвалидов со шнурком с табличкой для комплектов А310ш, APE510.2ш, арт. APE510ш
- Усилитель сигналов для комплектов А310, А311, А312, APE510.1, APE510.2, арт. APE401
- Сенсорный дозатор для людей с ограниченными возможностями, 110х100х165 мм, 600 мл, арт. 8115 - 2 шт.
- Зеркало для инвалидов с фиксированными наклоном 600х1000 мм, арт. 9008 - 2шт.
- Поручень прямой настенный 600мм Ø 32 мм для установки на дверное полотно внутри помещения, арт. 3218-600 - 4 шт.
- Универсальный травмобезопасный держатель (крючок) из нержавеющей стали, арт. DS-2269 - 2 шт.
- Крючок-держатель для тростей и других вещей, арт. 2202 - 2 шт.
- Унитаз подвесной, б/о,сид. DP Slim, Soft Close, Clip up, арт. 9264 - 5 шт.
- Инсталляция для подвесного унитаза с кнопкой смыва, арт. 9265 - 5 шт.
- Умывальник КОМО 50, арт. 9257 - 6 шт.
- Смеситель для раковины, короткий, арт. 9258 - 6 шт.
- Зеркало Арка 40х60, арт. 9255 - 6 шт.
- Писсуар, наружн. подвод воды, кран, гор.сифон, крепление, арт. 9266 - 2 шт.
- Механический диспенсер для туалетной бумаги, антивандальный, арт. 6964 - 5 шт.
- Антивандальный дозатор жидкого мыла, арт. 4292 - 4 шт
- Урна для санузла с поворотной крышкой (16л), арт. 1322А - 7 шт.
- Сушилка для рук, арт. 2513 - 6 шт.
- Тактильно-визуальный знак "Туалет для инвалидов" ГОСТ Р 52131, ПОЛИСТИРОЛ, арт. 4717-150 - 4 шт.
Дополнительно можно приобрести:
- Пьедестал для раковины арт. 9257 (50/55/60), арт. 9259
Внимание! Дополнительные аксессуары для подключения, помимо входящих в комплект поставки в единице товара, НЕ ВХОДЯТ! Приобретаются опционально по запросу менеджеру.
- Отправьте нам заявку на почту: zakaz@dstrana.ru
- Напишите нам в WhatsApp или в Telegram, подготовим коммерческое предложение или счет
- Нужна консультация? Звоните +78003027023
- Строительным компаниям: предусмотрены оптовые цены, счета с НДС
- Государственным учреждениям: можем подготовить 1,3 и более коммерческих предложений.
Работаем по договорам, 44/223ФЗ, по пост оплате, доставляем по всей РФ. - Проектирующим компаниям: есть чертежи на данный товар и другую продукцию нашей компании, обращайтесь!


